Available in April
3011 1st Avenue North
St. Petersburg, Florida 33713
$886,400
Square Feet
2,093 SF
Bathrooms
3.5
Bedrooms
3
Garage
2 car
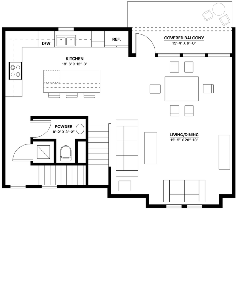
There’s still time to personalize your home—price reflects base features and does not include final design selections. Now selling in the heart of St. Pete’s Grand Central District, the Prism floorplan at Blanc offers the perfect blend of modern design and walkable urban living. Just 2.3 miles from downtown and steps from local dining, nightlife, and culture, this home is thoughtfully designed across three levels. The first floor includes a private two-car garage and a guest suite with its own entrance and kitchenette—ideal for hosting visitors or creating a flexible work or rental space. The second floor features open-concept living, dining, and kitchen areas, a powder bath, and a private covered balcony perfect for relaxing or entertaining. On the third floor, you’ll find two bedrooms, two full bathrooms, a convenient laundry area, and a versatile loft space. With high-end finishes, 9' ceilings, smart-home technology, and storm-ready all-concrete-block construction, Blanc is built for style, comfort, and peace of mind just steps from everything Grand Central has to offer.
Prism Floorplan
Kaelyn Hughes
Sales Counselor



Included Features
- Smart Home Features
- Private 2-Car Garage
- First Floor Guest Suite
- Designer Chef's Kitchen with Eat-In Island
- Balcony Off Living Space
- Flexible Loft Space
- Luxe Bath
- Bedroom Level Laundry
Photo Gallery

Located in St Petersburg
Blanc blends coastal style with urban ease—just 2.3 miles from downtown St. Pete and a short ride to the Central Arts District. These homes feature high-end finishes, 9' ceilings, smart home tech, and guest suites with private entrances and kitchenettes. With all-concrete block construction, private two-car garages, and covered balconies or porches, Blanc is built for beauty and peace of mind.
Now Selling! Be among the first to call this new community home. A beautifully finished model is set to open in early 2026. Fill out the form to stay in the loop on updates and availability!
Kaelyn Hughes
Sales Counselor
This site is protected by reCAPTCHA and the Google Privacy Policy and Terms of Service apply.